Od 71M2Nowoczesny dom do zabudowy bliźniaczej z dachem dwuspadowym Prefabrykowany

Nowoczesny dom do zabudowy bliźniaczej z dachem dwuspadowym Prefabrykowany

Udostępnij ten dom

Kopiuj

Lub udostępnij

Podstawy

  • Obszar, m²: 124
  • Kategoria:
  • Sypialnie: 1
  • Łazienki: 2
  • Razem pokoje: 3
  • Parter: 74,5 / 79,9 m²
  • PODDASZE: 49,4 / 66,2 m²
  • Data dodania: Dodano 3 lata temu

Parter

  • Sień: 4.1
  • Salon + Jadalnia: 26.4
  • Kuchnia: 7.2
  • Łazienka: 6.3
  • Pokój 1: 16.5
  • Garderoba: 4.3
  • Łazienka (2): 4.3
  • Pomieszczenie Gospodarcze: 5,4 m²
  • Hol: 5.3

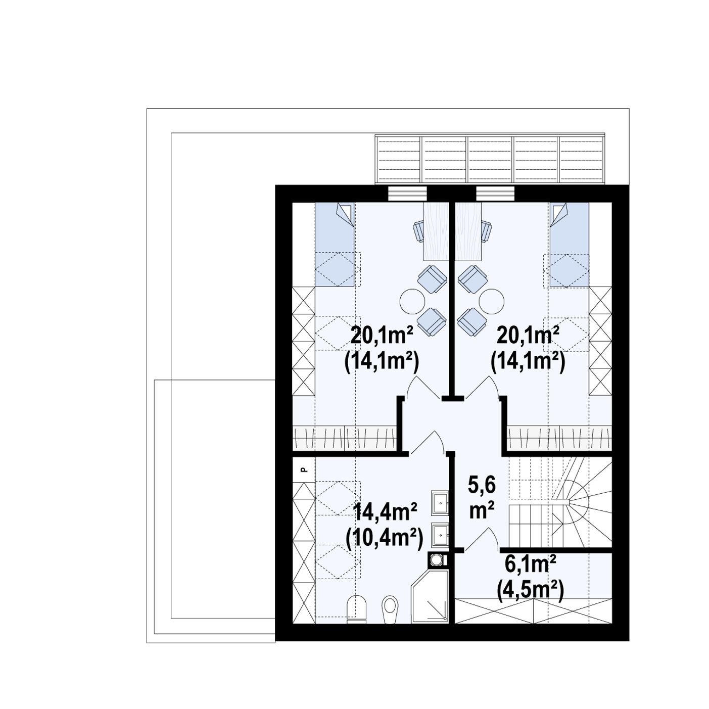
PODDASZE

  • Hol: 5.7
  • Pokój 1: 14,2 m² / 19,9 m²
  • Pokój 2: 14,4 m² / 20,1 m²
  • Łazienka: 10,6 m² / 14,5 m²
  • Schowek: 4,5 m² / 6,1 m²

Opis

  • Opis :

    Projekt konstrukcji wykonany został przy założeniach:

    • III strefa wiatrowa dla H = 300m n.p.m. obciążenia wiatrem (300 N/m2)
    • III strefa śniegowa dla H = 300m n.p.m. obciążenia śniegiem (1200 N/m2)
    • głębokość przemarzania gruntu hz = 1,2m
    • budynek zaliczono do I-ej kategorii geotechnicznej
    • obliczeniowy graniczny opór podłoża gruntowego założono: mxQf = 150kPa

    TERMOIZOLACYJNOŚĆ

    Instalacja grzewcza kocioł na gaz
    Instalacja CW  kocioł na gaz, kolektory słoneczne
    Rodzaj wentylacji mechaniczna (rekuperacja)
    Energia pierwotna (Ep)  53,17 kWh/m²/rok
    Energia końcowa (Ek) 56,76 kWh/m²/rok
    Pokaż cały opis

POWIERZCHNIA I WYMIARY

  • Powierzchnia użytkowa / netto: 123,9 / 146,1 m²
  • Powierzchnia zabudowy: 116,3 m²
  • Kubatura: 391,1 m³
  • Wysokość domu: 8,33 m
  • Kąt nachylenia dachu: 40° / 2°
  • Powierzchnia dachu: 144,56 m²
  • Minimalne wymiary działki: 18,46 x 19,66 m

TECHNOLOGIA I KONSTRUKCJA

  • Strop (parter): gęstożebrowy
  • Pokrycie dachu: blacha/blachodachówka/dachówka

Plany pięter

  • Plany pięter:

Zapytaj agenta o ten dom

By clicking the «POPROŚ O INFORMACJE» button you agree to the Warunki korzystania and Polityka prywatności
Ta nieruchomość w stylu znajduje się w i obecnie jest i została wymieniona na MxHouse Domy Prefabrykowane. Ta nieruchomość jest wystawiona na . Ma 1 sypialnie sypialnie, 2 łazienki łazienki i jest 124 . Nieruchomość może powstać dal Ciebie.
Powered by Estatik

Reset password

Wpisz swój adres e-mail, a wyślemy Ci link do zmiany hasła.

Powered by Estatik
Scroll to Top