Od 71M2Dom jednorodzinny z dachem 2-spadowym MxHause

Dom jednorodzinny z dachem 2-spadowym MxHause

Udostępnij ten dom

Kopiuj

Lub udostępnij

Podstawy

  • Obszar, m²: 121
  • Kategoria:
  • Sypialnie: 4
  • Łazienki: 2
  • Razem pokoje: 4
  • Parter: 77,3 / 82,2 m²
  • PODDASZE: 43,3 / 66,4 m²
  • Data dodania: Dodano 3 lata temu

Parter

  • Sień: 3.3
  • Salon + Jadalnia: 31.6
  • Kuchnia: 9.8
  • Spiżarka: 3.5
  • Łazienka: 3.8
  • Pomieszczenie Gospodarcze: 4,9 m²
  • Hol: 11.3
  • Gabinet: 10.9
  • Schowek 2: 1.6

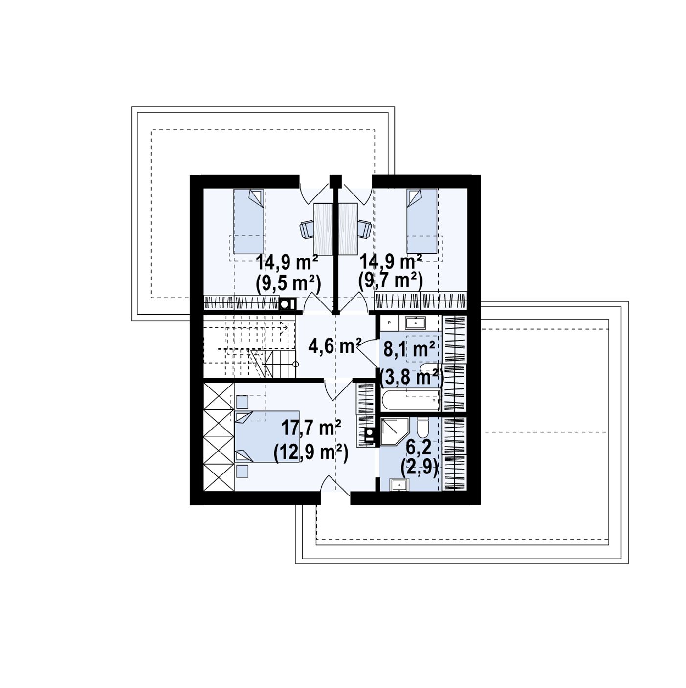
PODDASZE

  • Hol: 4.6
  • Pokój 1: 9,7 m² / 14,9 m²
  • Pokój 2: 12,9 m² / 17,7 m²
  • Łazienka (2): 3,8 m² / 8,1 m²
  • Pokój 3: 9,5 m² / 14,9 m²
  • Łazienka: 2,9 m² / 6,2 m²

Opis

  • Opis :

    Projekt konstrukcji wykonany został przy założeniach:

    • III strefa wiatrowa dla H = 300m n.p.m. obciążenia wiatrem (300 N/m2)
    • III strefa śniegowa dla H = 300m n.p.m. obciążenia śniegiem (1200 N/m2)
    • głębokość przemarzania gruntu hz = 1,2m
    • budynek zaliczono do I-ej kategorii geotechnicznej
    • obliczeniowy graniczny opór podłoża gruntowego założono: mxQf = 150kPa

    TERMOIZOLACYJNOŚĆ

    Instalacja grzewcza
    kocioł na gaz
    Instalacja CWU kocioł na gaz, kolektory słoneczne
    Rodzaj wentylacji mechaniczna (rekuperacja)
    Energia pierwotna (Ep) 65,83 kWh/m²/rok
    Energia końcowa (Ek) 67,48 kWh/m²/rok
    Pokaż cały opis

POWIERZCHNIA I WYMIARY

  • Powierzchnia użytkowa / netto: 120,6 / 148,5 m²
  • Powierzchnia zabudowy: 111,8 m²
  • Kubatura: 369,72 m³
  • Wysokość domu: 8,12 m
  • Kąt nachylenia dachu: 40° / 2°
  • Powierzchnia dachu: 146,67 m²
  • Minimalne wymiary działki: 19,01 x 20,36 m

TECHNOLOGIA I KONSTRUKCJA

  • Strop (parter): gęstożebrowy
  • Pokrycie dachu: dachówka
  • Konstrukcja dachu: więźba tradycyjna

Plany pięter

  • Plany pięter:

Zapytaj agenta o ten dom

By clicking the «POPROŚ O INFORMACJE» button you agree to the Warunki korzystania and Polityka prywatności
Ta nieruchomość w stylu znajduje się w i obecnie jest i została wymieniona na MxHouse Domy Prefabrykowane. Ta nieruchomość jest wystawiona na . Ma 4 sypialnie sypialnie, 2 łazienki łazienki i jest 121 . Nieruchomość może powstać dal Ciebie.
Powered by Estatik

Reset password

Wpisz swój adres e-mail, a wyślemy Ci link do zmiany hasła.

Powered by Estatik
Scroll to Top